St. Francis Medical Center – Honolulu, HI
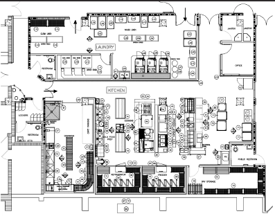
Orlando Espinosa + Associates, LLC was engaged by Lionakis Architects of Honolulu, Hawaii, to serve as the foodservice consultant of record for the renovation of the Sullivan Wing basement. The project created a new kitchen and laundry to support 119 beds in the Sullivan Wing and 107 beds in the Mother Marianne Wing of St. Francis Medical Center.
The kitchen was designed to deliver room service tray service for patients, while also supporting a coffee shop, doctors’ break room, and foodservice for the senior day care program.
Year Completed: 2015–2016
Construction Cost: $645,000
Foodservice Area: 2,820 sq. ft.



